Description de l'offre
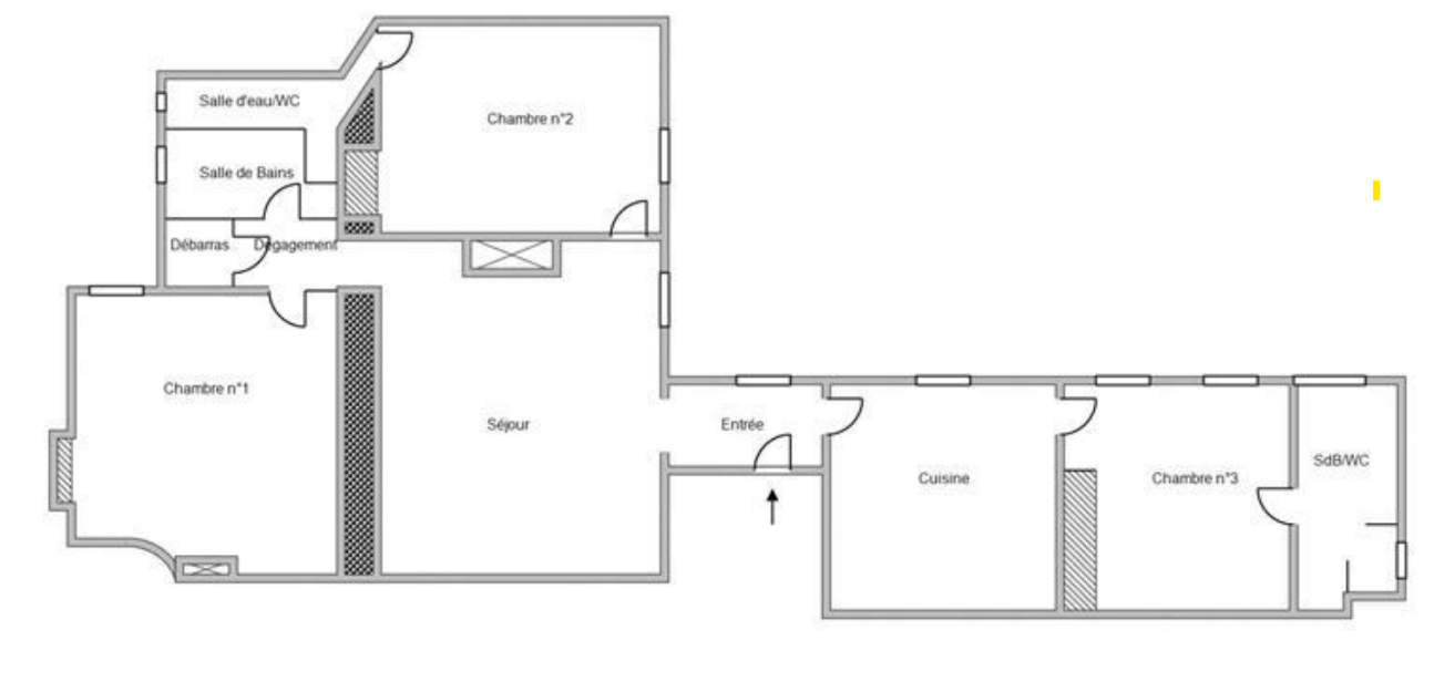
NIMES ECUSSON Dans un secteur prisé du centre historique, entre les Arènes et les Halles, découvrez en fond d’une petite résidence intime ce spacieux appartement T4 de 134,89 m² Loi Carrez. Situé au premier étage, il se compose d’une entrée, d’une belle pièce de vie avec cheminée, d’une cuisine séparée et de trois grandes chambres chacune avec sa propre salle de bains ou salle d’eau. Vous serez séduit par l’authenticité et le charme de ce bien aux volumes généreux. Un garage privatif, rare dans le secteur, ainsi qu’une grande cave de 25 m² viennent compléter ce bien unique. Bien soumis au statut juridique de la Copropriété. Nb de lots : 44 (dont 22 appartements). Charges annuelles de copropriété (Montant moyen annuel quote-part du budget prévisionnel vendeur) : 2104€. Procédure en cours : néant. Honoraires charge vendeur. Les informations sur les risques auxquels ce bien est exposé sont disponibles sur le site Géorisques : www.georisques.gouv.fr.
