Description de l'offre
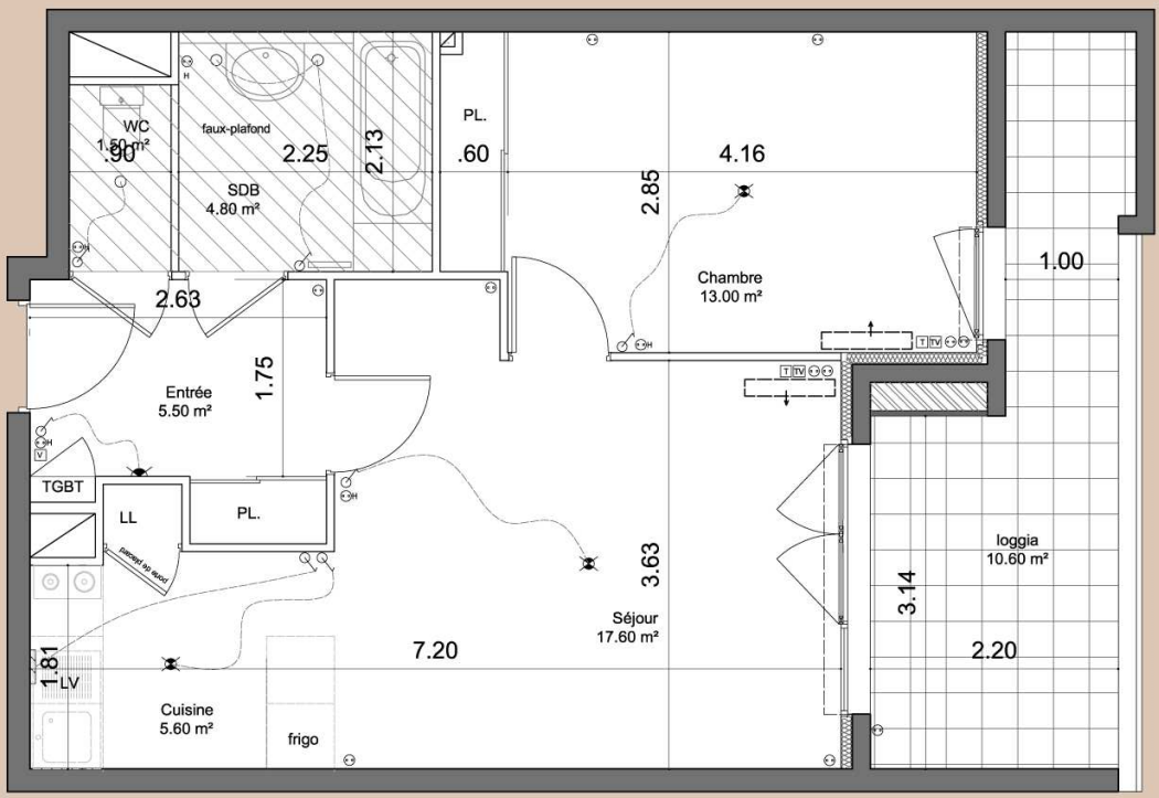
NIMES GARE FEUCHERES APPARTEMENT T2 TERRASSE GARAGE ASCENSEUR VENDU LOUE Dans une résidence récente et sécurisée, idéal pour un investissement locatif. Découvrez au 3ème étage ce spacieux appartement T2 de 47,19m² LC. Il se compose d’une entrée, pièce à vivre avec cuisine, une chambre avec rangement, salle de bains, wc. Terrasse. Garage. Vendu loué avec un locataire en place depuis 01/08/2020, loyer Hors Charges de 612,21€. Bien soumis au statut juridique de la copropriété. Nombre de lots : 350 dont 175 appartements. Charges annuelles de copropriété (montant moyen annuel quote-part du budget prévisionnel vendeur): 890€. Procédure en cours : néant. Honoraires charge vendeur. Les informations sur les risques auxquels ce bien est exposé sont disponibles sur le site Géorisques : www.georisques.gouv.fr.
