Description de l'offre
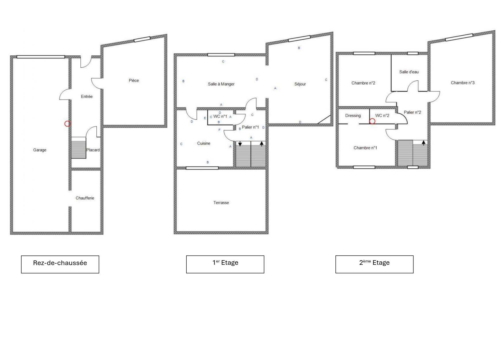
EXCLUSIVITE MILHAUD En plein cœur de Milhaud, à proximité immédiate des commerces et de l’école primaire, découvrez cette charmante maison de ville T6 d’environ 143m². Au premier étage, vous profiterez d’une double pièce à vivre composée d’un salon avec cheminée et d’une salle à manger attenante. La cuisine est équipée et ouvre sur une agréable terrasse de 23m². Au deuxième étage, trois spacieuses chambres avec une salle d’eau et un WC séparé. Au rez-de-chaussée, un grand garage de 38,55m² et une belle pièce voûtée de 20m² pouvant servir de quatrième chambre, de bureau ou de salle de jeux complètent le tout. Les plus : menuiseries double vitrage, volets roulants électriques. Honoraires charge vendeur. Les informations sur les risques auxquels ce bien est exposé sont disponibles sur le site Géorisques : www.georisques.gouv.fr
